Porzione di bifamiliare in vendita

Rimini, Via Tosca - Padulli
€ 650.000
6 locali 6 locali
146 Mq 146 Mq
2 bagni 2 bagni

Porzione di bifamiliare in vendita

Rimini, Via Tosca - Padulli

Descrizione annuncio

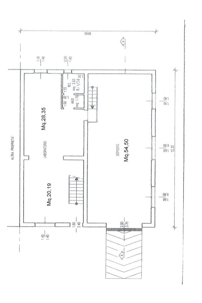
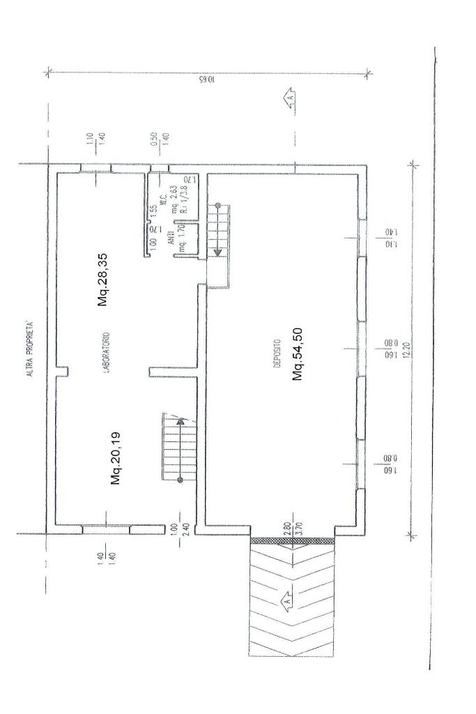
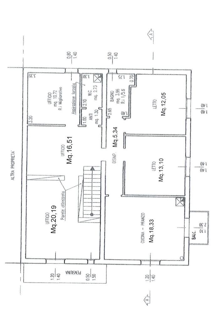
Proponiamo In vendita porzione di bifamiliare ad uso residenziale e commerciale posizionato su Statale 16, lato Padulli, con ampio spiazzale esterno pavimentato con cancello elettrico in un lotto complessivo di 1900mq. L’immobile è composto al piano terra da un ampio vano recentemente utilizzato come accoglienza per i clienti, più un bagno , e un deposito alto sette metri utilizzato come officina con rampa d’accesso e carroponte. Al piano superiore ci sono due unità immobiliari: un ufficio di 60 mq composto da 3 vani più un bagno, parzialmente arredato e un appartamento di 65 mq. Composto da due camere, sala, cucina, bagno.

L'immobile è dotato di portone blindato, cancello elettrico, infissi in pvc doppio vetro e riscaldamento con fain coil.

Allegate planimetrie di ogni ambiente:

Per maggiori informazioni passa in agenzia o contattaci al numero: 0541 455 891.

Mostra tutto

Nelle vicinanze

Trasporto pubblico Trasporto pubblico
stazione di Riminifiera
stazione di Riminifiera
2,5 Km
Rimini
Rimini
2,7 Km
Trasporto pubblico
1,5 Km
Valturio Rotonda
Valturio Rotonda
1,5 Km
Ricariche auto elettriche Ricariche auto elettriche
Eneldrive Caduti di Cefalonia
650 m
CONCESSIONARIO NISSAN Ren-auto PIRACCINI
1,3 Km
Eneldrive Palacongressi
1,8 Km
Rimini Ponte di Tiberio | EnelX
1,9 Km
Fiera di Rimini - Parcheggio Sud
2,3 Km
Scuole Scuole
Scuola elementare statale Maria Montessori
870 m
Scuola elementare Raffaello Lambruschini
870 m
Scuola Primaria statale Enrico Toti
1,3 Km
I.S.S.M “G. Lettimi”
1,8 Km
Scuola media statale Aurelio Bertola
1,9 Km
Farmacia Farmacia
Para Farmacia dell Castello
1,7 Km
Farmacia Comunale n. 6
1,8 Km
Parafarmacia Conad
1,9 Km
Versari
1,9 Km
Farmacia
1,9 Km
Supermercati Supermercati
Lidl
290 m
Coop Marecchiese
600 m
Penny
680 m
Sisa
1,0 Km
Coop Celle
1,7 Km
Negozi Negozi
Barbato
1,8 Km
In’s Mercato
1,8 Km
Balducci
1,8 Km
OVS
1,9 Km
Negozi
2,0 Km
Bar Bar
Romana Fuoriporta
790 m
Mack Bar
910 m
Bar Hollywood
960 m
Bar 70
1,1 Km
Bar dei Portici
1,7 Km
Ristoranti Ristoranti
Osteria Dei Poeti
1,6 Km
Sushi
1,6 Km
Loving Hut
1,7 Km
Ristorante Pizzeria Liberta
1,8 Km
Marco Cuccina
1,8 Km
Mostra tutto

Caratteristiche

Rif.:
61172567
Piano:
Su più livelli di 1
Totale piani:
1
Box:
1
Posti auto:
3
Balconi:
1
Mostra tutto
Prezzo Prezzo
€ 650.000
Rata mutuo Rata mutuo
€ 3.064 / mese
Spese annue Spese annue
€ 0
Proponi il tuo prezzoProponi il tuo prezzo

Classe Energetica

Questo immobile è esente da classe energetica
Anno di costruzione:
1990
Riscaldamento:
Autonomo
Tipo impianto:
A radiatori
Tipo alimentazione:
Aria

Ti interessa visionare l'immobile?

Fissa un appuntamento  Fissa un appuntamento

Richiedi informazioni

Clicca su Leggi per aprire l'informativa
* Questi campi sono obbligatori

Calcola il tuo mutuo

Semplice e senza impegno
Anticipo

( % )
Mutuo

( % )

pochi semplici passi

inserisci i tuoi dati
Questionario completato
Grazie per aver richiesto un appuntamento senza impegno con un nostro Consulente del Credito e Assicurativo.

Hai inserito correttamente tutti i dati necessari e a breve riceverai una e-mail con un link da convalidare per inviare i tuoi dati.
Affiliato
Studio Olimpia Srl
Via Circonvallazione Occidentale, 10/A 47900 Rimini (RN)

Il nostro staff


  • Sorin Daniel Bogdan
    Affiliato
Via Circonvallazione Occidentale, 10/A 47900 Rimini (RN)
Zona: Marecchiese-Padulli-Dario Campana-Vergiano-Spadarolo-S.Ermete-S.Martino dei Mulini-Corpolò
Mostra su mappa
Orari: Da Lunedì a Venerdì 9:00-13:00 15:30-19:00 Sabato 9:00-13:00
Affiliato
Studio Olimpia Srl
Via Circonvallazione Occidentale, 10/A 47900 Rimini (RN)

2026 Tecnocasa Franchising S.p.A. - P. IVA 08365160152 - Via Monte Bianco 60/A 20089 Rozzano (MI). Ogni agenzia ha un proprio titolare ed è autonoma. Privacy policy | Policy utilizzo | Cookie policy